时间:2023-07-23 浏览:660

0 1 平 面 布 局 图

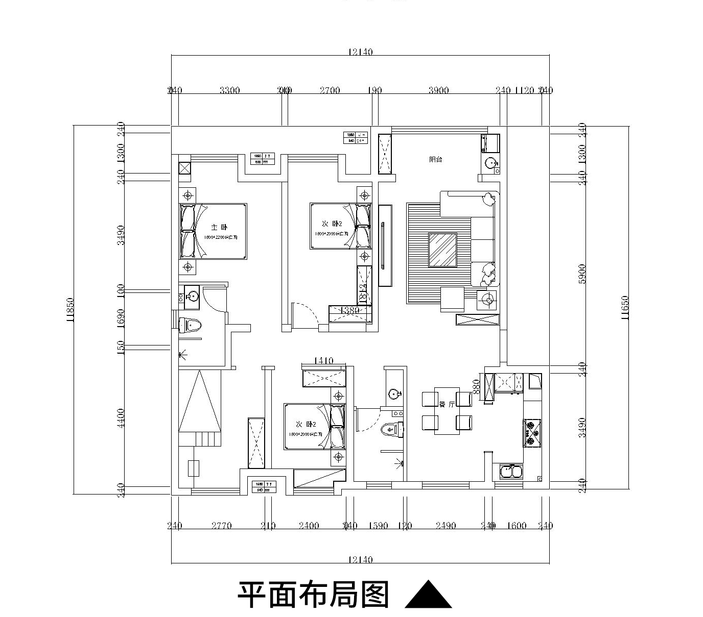
本案是三室一厅两卫的房子,根据屋主的需求,满足高收纳需求,空间的功能形式与被赋予的需求也都是围绕着夫妻俩的喜好和生活方式来设计的,那就让我们一起来看看设计的效果如何吧!
0 2 客 厅


客厅是待得最多的区域,在大融合的空间里,他们希望看到彼此又能做自己的事情,下班回家一起窝在沙发上,看电视、听音乐是他们最好的放松方式。
0 3 餐 厅


整个餐厅从桌椅到餐边柜再到墙壁上的挂画,非常简洁,明亮且不失时尚,尽显安静而不张扬的生活态度,简约的精致感油然而生。
0 4 厨 房

U型厨房设计让动线更为合理,墙面地面以灰色为基础,定制浅灰色橱柜与灰色的台面结合,充满现代时尚的高级感。
0 5 卧 室

卧室保持整体的色彩搭配,让空间更加统一舒适放松,人的本质都是简单的自然简单的空间搭配,从某种程度上可以得到减压的效果。定制书桌做梳妆台兼具展示和收纳功能。
0 6 卫 生 间

卫生间设计干湿分离,按照使用动线划分洗漱区、马桶区、淋浴区,有效避免动线交叉,使日常生活更加方便。



