公司动态

当前位置
网站首页
新闻资讯
公司动态

工装案例 || 小牧羊烧烤龙虾碳锅私房菜 工业风

时间:2022-09-20 浏览:650

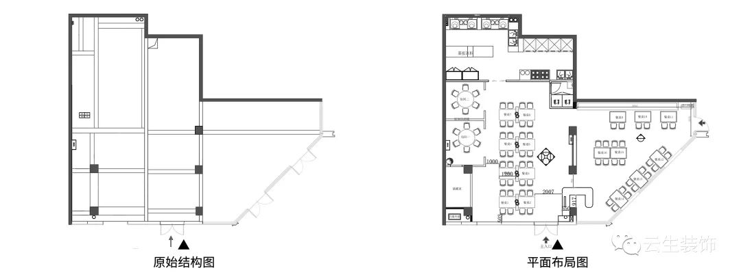
微信图片_20220920103100.jpg

微信图片_20220920103218.jpg

微信图片_20220920103358.jpg

什么是工业风?

宽广的空间里,到处是粗糙的柱壁,灰暗的水泥地面,裸露的钢结构和砖墙,还有错综复杂的金属管道,简单、随性、粗犷,不加修饰,这就是工业风。

微信图片_20220920103729.jpg

原始灰色墙面比起砖墙的复古感,水泥墙更有一分沉静与现代感。

微信图片_20220920103856.jpg

金属制的椅子搭配木纹的台面看起来粗犷坚韧又有质感。

微信图片_20220920103950.jpg

铁艺制品的复古灯不仅粗犷坚韧、持久耐用,而且外表冷峻、酷感十足,复古灯的冷光对于工业风来说可以很好的融合、统一,成为整个画面中别具一格的元素。

微信图片_20220920104031.jpg

微信图片_20220920104124.jpg

微信图片_20220920104211.jpg