安徽云生装饰设计有限公司
网站首页
精品案例
设计师
新闻资讯
在线报价
关于云生
联系我们
精品案例 · Case
精品案例
全部案例
现代简约
简欧
新中式
新古典
现代
轻奢
田园
地中海
欧式
美式
北欧风
工业风
日式
精品案例
当前位置
网站首页
精品案例
轻奢
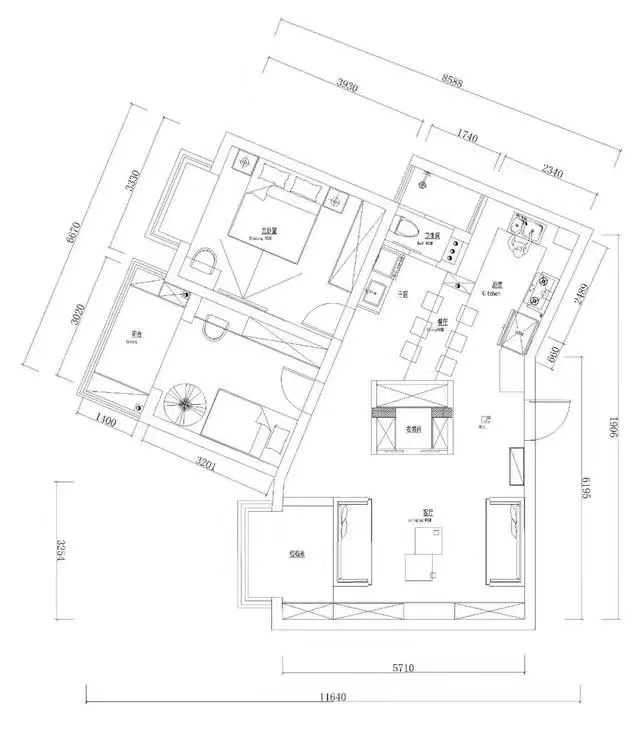
80平的轻奢风小户型二居室
时间:2021-12-07
浏览:1174