精品案例

当前位置
网站首页
精品案例
现代简约

142㎡暖色简约空间

时间:2022-10-14 浏览:507

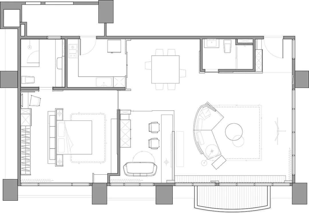
平面布局

微信图片_20221014171658.jpg

从格局、家具到建材皆反映了屋主夫妻生活现况。142㎡的空间诠释生活型态––断绝不需要、舍去多余、脱离对物品的执着;同步透过无垢材木料、窗纱、清水磨砖和玻璃等贴近原貌的建材,交织出优柔淡雅的起居日常。

微信图片_20221014171745.jpg

微信图片_20221014171748.jpg

微信图片_20221014171750.jpg

微信图片_20221014171752.jpg

微信图片_20221014171758.jpg

微信图片_20221014171800.jpg

微信图片_20221014171803.jpg

微信图片_20221014171808.jpg

微信图片_20221014171805.jpg

微信图片_20221014171810.jpg

微信图片_20221014171812.jpg

微信图片_20221014171815.jpg

微信图片_20221014171817.jpg