时间:2022-08-05 浏览:439
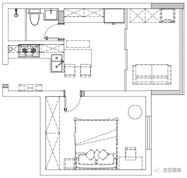
平面布局图
▼

入户门

玄关的设计比较简单,因为空间较小,不适合做太多装饰,玄关处设计了一个竖长形的鞋柜,鞋柜注重实用性。玄关空间格局较为合理。
客厅
整个地板采用木质板材,在良好的采光下,散发出木材独有的温润与舒适~
餐厅
纯实木材质的方形餐桌和凳子非常简约时尚~
厨房
厨房很小,满面墙的吊柜,收纳功能超强,台面整齐,既好清洁,也觉得宽敞。橱柜颜色淡雅,视觉效果很不错。
水池

小户型的设计富有特色,简单而又不失品质。
户型的大小,不会限制我们追求生活的品质,在有限的房屋空间里,我们也要追求一个舒适的生活状态。
